
六本木通り沿いでありながら、緑あふれるエリアに位置しています。
※旧:BOSCH本社ビルからビル名称が変更になりました。
Access
東急東横線・田園都市線、JR山手線・埼京線、東京メトロ銀座線・半蔵門線・副都心線、京王井の頭線「渋谷駅」C1出口徒歩3分

六本木通り沿いでありながら、緑あふれるエリアに位置しています。
※旧:BOSCH本社ビルからビル名称が変更になりました。
Access
東急東横線・田園都市線、JR山手線・埼京線、東京メトロ銀座線・半蔵門線・副都心線、京王井の頭線「渋谷駅」C1出口徒歩3分
現在空室はございません
| 住所 | 東京都渋谷区渋谷3丁目6-7 |
||
|---|---|---|---|
| 交通アクセス | 東急東横線・田園都市線、JR山手線・埼京線、東京メトロ銀座線・半蔵門線・副都心線、京王井の頭線「渋谷駅」C1出口徒歩3分 | ||
| 竣工 | 1993年10月(2019年 貸室内全面改装) |
敷地面積 | 1,358.67㎡ / 410.99坪 |
| 構造 | 地上:鉄骨造 地下:鉄骨鉄筋コンクリート造、一部鉄筋コンクリート造 |
規模 | 地下2階付18階建 |
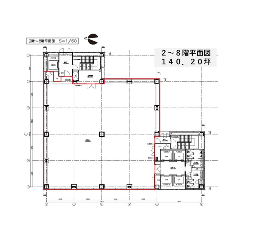
| 延床面積 | 12,594.98㎡ / 3,809.98坪 |
貸主 | 東急(株) |
| 設計監理 | (株)大林組 | 施工 | (株)大林組 |
| 基準冷暖房 供給時間 |
--------- | 開閉館時間 | --------- |
| 管理形態 | --------- | 駐車場 | 機械式(48台) |
| エレベーター | 乗用4基、荷物用1基 | ||
| 事務所賃貸面積 | --------- | トイレ | --------- |
|---|---|---|---|
| 電気容量 | 45VA/㎡(コンセント) ※11・12階のみ60VA/㎡ |
給湯室 | --------- |
| 天井高 | 基準階/2,600 mm 特殊階/17階:確認中(スケルトン引渡) /10階 吹抜部分:10,400mm /1階:確認中(スケルトン引渡) |
机上照度 | --------- |
| 床荷重 | 500kg/㎡ |
通信インフラ | --------- |
| OAフロア | 基準階100mm |
空調設備 | セントラル空調(一部個別空調あり) |
| 電話設備 | --------- | セキュリティ | --------- |
東京都渋谷区渋谷3丁目6-7
Access
東急東横線・田園都市線、JR山手線・埼京線、東京メトロ銀座線・半蔵門線・副都心線、京王井の頭線「渋谷駅」C1出口徒歩3分
東急(株)オフィスリーシングセンター